Projekte

Sanierung
Müllerhaus Kappeln

Kurzinfo

Ort: Schleswiger Str. 1, 24376 Kappeln
Leistung: Vorplanung bis Objektüberwachung(LPH 1-8)
Bauvolumen: 152,24m² Netto-Raumfläche EG und DG
Leistungszeitraum: 01 / 2022 - 04 / 2024
Auftraggeber: Stadt Kappeln


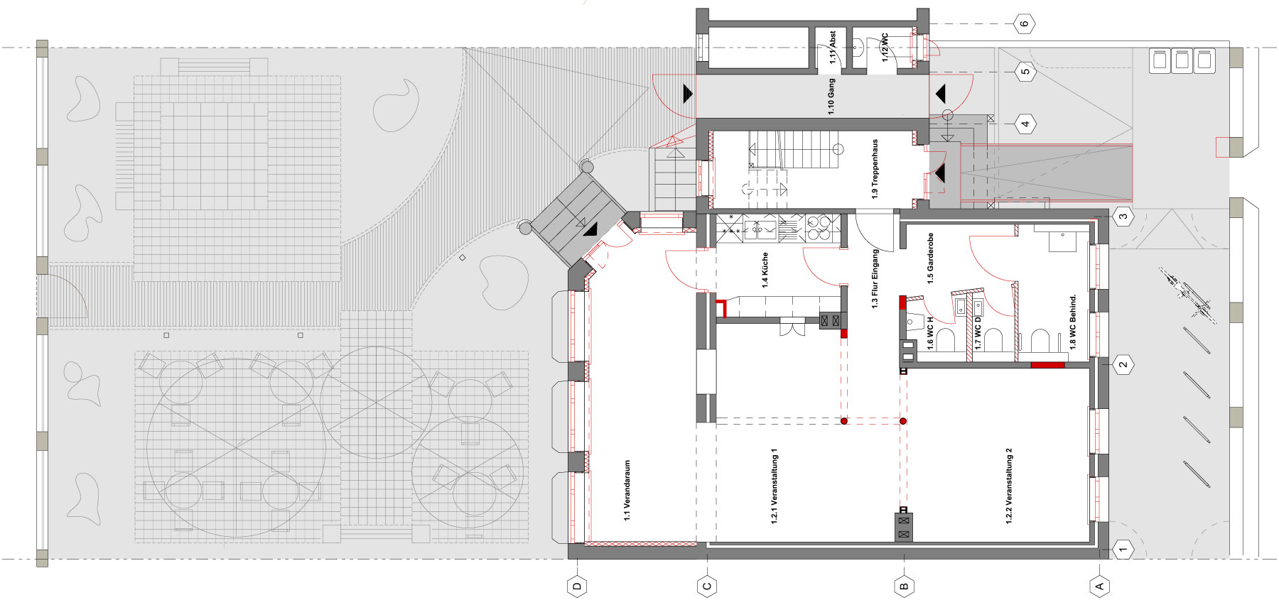
Das Müllerwohnhaus wurde mit der Windmühle Amanda nach einem Brand 1888 neu errichtet und stellt mit dem benachbarten Sägewerk ein Kulturdenkmal-Ensemble von besonderer Bedeutung dar.

Das Projekt zeigt, wie denkmalgeschützte Bausubstanz durch moderate energetische Sanierung sinnvoll nutzbar gemacht werden kann und damit durch das Engagement der Stadt Kappeln und konstruktive Zusammenarbeit mit der Denkmalpflegebehörde für die Öffentlichkeit dauerhaft erhalten wird.

Die Fassade ist ein frühes Beispiel für die Verwendung von industriell gefertigten Steinen, bestehend aus einem Kalk-Zement-Gemisch mit groben und feinen Steinsplitt-Zuschlägen. Diese für die damalige Zeit moderne Fassade wurde behutsam gereinigt und mit Schlämme geglättet. Schäden durch Auswaschung wurden durch Nachahmung des Steinmaterials im Detail ausgebessert.

Die Außenhülle wurde energetisch saniert: zweifachverglaste Holzfenster, Calcium–Silikat–Innendämmung, gedämmter Fußbodenaufbau auf neuer Betonsohle und eine moderate Dachdämmung zugunsten flacher Dachränder mit neuer Bitumenbahn.

Im Erdgeschoss passt die historische Raumaufteilung mit alten Türen und Fliesen nahezu unverändert für die dort einziehende Touristinformation. Im Dachboden wurde der Dachstuhl ertüchtigt und bildet einen stimmungsvollen Raum für Büroarbeit.


Fotos: wiederArchitekten

Neubau
2. Tagesklinikstation

Kurzinfo

Ort: Kiel
Leistung: Grundlagenermittlung bis Objektüberwachung (LPH 1-8)
Bauvolumen: 727 m² Netto-Raumfläche
Leistungszeitraum: 03/2017 – 07/2020 (LPH 1-3) | 01/2021 – 04/2024 (LPH 3-8)
Auftraggeber: Verein zur Förderung sozialpädagogischer Initiativen e.V. – Kieler Fenster


Die bestehende Tagesklinik ehemaligen Volkshochschule wird um eine Tagesklinikstation für 20 Patienten erweitert, gefördert vom Land SH. Der von Patienten und Mitarbeitern gern genutzte grüne Innenhof, begrenzt von raumbildendem altem Baumbestand, wird mit einem zeitgemäßen aber sich mit einem in ähnlicher Kubatur einfügenden Baukörper dreiseitig geschlossen. Satteldach, roter Stein und weiße, viergeteilte Fenster nehmen die Merkmale des Bestands auf. Geflammte Holzfassadenflächen, der farbige Eingangsbereich und das transparente Vordach setzen neue Akzente.

Der Neubau enthält Räume für Kunst- und Therapieräume, Gruppenräume und Ruheräume, Büros sowie einen Bewegungsraum als Umbau im Bestand. Naturfarbene Akustikdeckenplatten, Holzfußboden und Kautschukboden erzeugen einen einladenden wohnlichen Charakter.


Fotos: wiederArchitekten

Sanierung
Dachsanierung in Schleswig

Kurzinfo

Ort: Klosterhoferstraße Schleswig _ Stadt Schleswig
Leistung: Grundlagenermittlung bis Objektüberwachung (LPH 1-8)
Leistungszeitraum: 05/2020 - 07/2021
Auftraggeber: Privat


Dachsanierung eines Wohnhauses in Schleswig nach KfW-Standard. Stärkung der Innenraumqualität im Dachgeschoss durch großflächige Fensteröffnungen im Dach. Umnutzung des Spitzbodens zur Wohnfläche. Historische Straßenansicht bleibt erhalten, die Sparrenaufdopplung wird durch harmonische Ergänzung des Giebelgesims und hochwertige Verkleidung der Traufen, passend zur sanierten Gaube, kaschiert.

Ein Beispiel, dass eine energetische Dachsanierung nicht das Straßenbild zerstören muss und der Charakter eines Hauses erhalten bleiben kann.


Fotos: wiederArchitekten

Neubau und Umbau
Kita Bullerbü

Kurzinfo

Ort: Strandstraße 21a, 24217 Schönberg, Kreis Plön
Leistung: Grundlagenermittlung bis Objektüberwachung LPH 1-8)
Bauvolumen: 340 m² Netto-Raumfläche
Leistungszeitraum: 09/2018 – 08/2020
Auftraggeber: ASB Landesverband SH e.V. Regionalverband Kreis Plön


In einem dörflichen Wohngebiet von Schönberg steht die kleine Kita „Bullerbü“ mit zwei Krippengruppen.

Die durch uns gebaute Erweiterung ergänzt das Satteldach - Ensemble um zwei Gruppen für Ü3 - Kinder und Nebenräumen.

Die Baukörper zeigen sich auch innen zum verbindenden Flur mit ihrer Kubatur und den Fassadenmaterialien. Dort bewegen sich die Kinder auf einer „Dorfstraße in Bullerbü“, entdecken unterschiedliche Raumeindrücke, Materialien und Farben und identifizieren sich mit ihrem Gruppenhaus.

Diese Erweiterung wurde als Holzrahmenbau mit Holzweichfaserdämmung und wohngesunden Materialien wie Kautschukfußboden und Silikatwandfarben bei laufendem Kitabetrieb errichtet. Ergänzt wird das Dorfkonzept um die natürlich gestaltete Spiellandschaft im Außenraum.


Fotos: Kaja Grope

Anbau und Umbau
Anbau Dorfgemeinschaftshaus mit Kita

Kurzinfo

Ort: Dorfstr. 13a, 24241 Blumenthal, Kreis Rendsburg-Eckernförde
Leistung: Grundlagenermittlung bis Genehmigungsplanung (LP 1-4)
Bauvolumen: Kita Neubau 150m² Brutto Geschossfläche
DGH Bestand 850m² EG+UG Brutto Geschossfläche
Leistungszeitraum: seit 09/2020
Auftraggeber: Gemeinde Blumenthal über Amt Molfsee


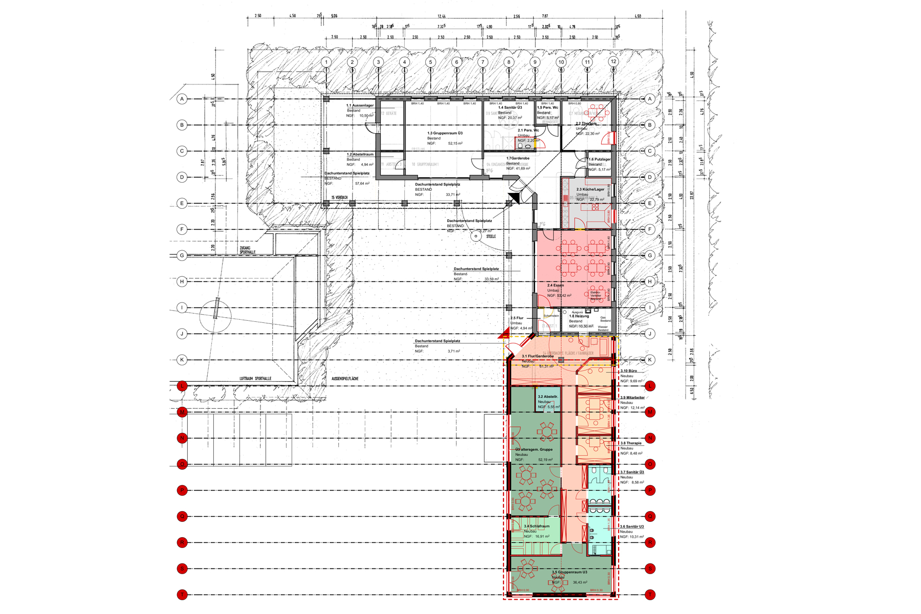
Das Dorfgemeinschaftshaus, BJ 1992, mit Gemeindesaal und Küche, Gruppenräumen, Sportraum, Feuerwehr, Kindergarten und Spielplatz ist der Mittelpunkt der Dorfgemeinschaft.

An den zentralen Gemeindesaal docken sich die Kitaräume an. Tagsüber Kinderspiel und abends Versammlungen und Feste: eine kosten–, flächen- und ressourcensparende Mischnutzung.

Der Erweiterungsbau für die Kita ergänzt die prägnante Architektur der sich überlagernden Pult- und Satteldächer ganz selbstverständlich um einen Pultdachbaukörper mit tiefer Traufe und einem selbstbewussten maisgelben Erker als Spielplatzausguck.

Es wurde nachhaltig und wohngesund gebaut: Holzrahmenbau bei laufendem Kitabetrieb, Dämmung aus nachwachsenden Rohstoffen, Kautschukböden, Silikatfarben, wartungsfreie Holz-Alufenster und vorvergraute Holzfassade.

Bereits im Jahr 2015 wurde ein regeneratives Beheizungskonzept unter vollkommenden Verzicht auf fossile Brennstoffe für das Dorfgemeinschaftshaus umgesetzt. Dieses Konzept wurde für den neuen Anbau erweitert und optimiert. Die Wärmeerzeugung erfolgt über eine Wärmepumpe, die die Beheizung über oberflächennahe Geothermie mittels Erdwärmesonden ermöglicht. Die Regeneration des Erdsondenfeldes erfolgt über Solarthermie


Fotos: wiederArchitekten

Anbau
Kindheitsmuseum

Kurzinfo

Ort: Knüllgasse 16, 24217 Schönberg, Kreis Plön
Leistung: Grundlagenermittlung bis Objektüberwachung (LPH 1-8)
Bauvolumen: 50 m² Netto-Raumfläche
Leistungszeitraum: 2014 (LPH1-3) 01/2020 - 11/2020 (LPH4-8)
Auftraggeber: Gemeinde Schönberg


Der Anbau für das Kindheitsmuseum, in Material und Konstruktion modern, passt sich in den Proportionen und der Kubatur dem historischen denkmalgeschützten Bestand an.

Es ist in der Ausführung ein moderner Holzrahmenbau, mit nachwachsenden Rohstoffen in Konstruktion und Dämmung, Fassade aus farbigen Zementplatten mit je nach Witterung natürlich changierender Oberfläche, Echtholzfußboden. Die schmalen Holzeckfenster geben gewählte Ausblicke in die Landschaft und lassen viel Wandfläche für den Ausstellungszweck.

Der Raum kann mit dem separatem Eingang vielfältig flexibel genutzt werden und soll künftig der Präsentation einer Schulklasse von 1900 dienen.

Parallel wurde im Bestand renoviert und der Brandschutz ertüchtigt.


Fotos: wiederArchitekten

Neubau und Umbau
Kindertagesstätte Rumohr

Kurzinfo

Ort: Dorfstraße 21, 24254 Rumohr, Kreis Rendsburg-Eckernförde
Leistung: Grundlagenermittlung bis Objektbetreuung (LPH 1-9)
Bauvolumen: 390 m² Netto-Raumfläche
Leistungszeitraum: 09/2017 - 03/2019
Auftraggeber: Gemeinde Rumohr


Das Gebäude „Alte Schule“ im Ortskern von Rumohr wurde seit dem Auszug der Schule immer wieder um- und angebaut. Heute ist es mit den Nutzungen Feuerwehr, Gilde, Gemeindehaus und eben Kindergarten sowie den südlichen Freiflächen für den Gildeplatz, den Sportplatz und den Dorfspielplatz das Zentrum des gesellschaftlichen Lebens des Dorfes.

Der Kindergarten wurde mit dem Anbau um drei Gruppen mit insgesamt 35 Kindern im Alter von 1-6 erweitert. Der bestehende Kindergarten im Altbau wurde umgebaut und saniert, so dass nun an diesem Standort 60 Kinder betreut werden können.

Der Neubau stellt sich als heimliche Großform bewusst hinter den Bestand und gewährt diesem Respekt. Schräge Traufen, kleine Giebel und tiefe Kehlen sind eine moderne Interpretation des umgebenden dorfbaulichen Maßstabs. Der Windfang als Verbindungselement zwischen Alt- und Neubau bleibt als Durchgang zum Gemeindehaus offen. Möbel und sichtbare Holzsparren erzeugen einen warmen natürlichen Innenraum.

Der kostengünstige Holzrahmenbau wurde in kurzer Bauzeit errichtet.


Fotos: Solvin Zankl

Neubau
Kindergarten Mettenhof

Kurzinfo

Ort: Stockholmstr. 14, 24109 Kiel
Leistung: Grundlagenermittlung bis Objektbetreuung (LPH 1-9)
Bauvolumen: 1.000 m² Netto-Raumfläche
Leistungszeitraum: 01/2016 - 07/2017
Auftraggeber: Arbeiter-Samariter-Bund (ASB) SH


Das durch naturschutzrechtliche Auflagen nur eingeschränkt bebaubare Grundstück am Rand eines kleinen Gewerbegebietes am Domänental in Kiel-Mettenhof wird mit dem Bau einer Kita für 4 Ü3- und 1 U3-Gruppe an der westlichen Grundstücksgrenze optimal ausgenutzt. Der barrierefreie Baukörper schiebt sich in das bestehende Hanggelände mit ca. 4m Höhenunterschied.

Der Eingang führt in das Herz der Kita: Eine große, teilbare Bewegungshalle mit individueller Deckenkonstruktion, großer Glasfassade und Terrassendeck zum Domänental. Von dort gehen die Kinder über Garderobenbereiche mit Aufenthaltsqualität in die geschützteren wabenförmigen Gruppenräume. Alle Kinderräume sind zum östlichen Freigelände ausgerichtet und erhalten trotz kompaktem Baukörper Tageslichteinfall bis in die Raumtiefe.

In rationeller Holzbauweise erstellt kann die Kita nach einem knappen Jahr Gesamtbauzeit in Betrieb gehen.


Fotos: Solvin Zankl

Umbau und Sanierung
Freya Frahm Haus

Kurzinfo

Ort: Strandstraße 15, 24235 Laboe, Kreis Plön
Leistung: Gutachten, Sanierungskonzept, Entwurf bis Objektbetreuung (LPH 3-9)
Bauvolumen: 300 m² Netto-Raumfläche
Leistungszeitraum: 11/2013 – 12/2015
Auftraggeber: Gemeinde Ostseebad Laboe


Umbau und Sanierung einer zweigeschossigen Stadtvilla von 1900 an der Strandpromenade von Laboe. Das Erbe der Laboerin Frau Freya Frahm wurde mit einem kleinteiligen Konzept der den engen Kostenrahmen einhielt für die Gemeinde zur kulturellen Nutzung erhalten.

Der Charme des Denkmals wurde erhalten – Laboer Bäderarchitektur der Jahrhundertwende in historischem Glanz - stehen der Öffentlichkeit als Ausstellungsräume mit besonderem Flair zur Verfügung.

neues Dach, Erhalt des alten Tragwerks, neue Holzfenster, neuer Silikatanstrich, authentisches Farbkonzept, Stuckelemente repariert, Kellergewölbe statisch unterstützt, barrierefreie Rampe ins Erdgeschoss


Fotos: Solvin Zankl

Neubau und Umbau/Sanierung
einer Tagesklinik

Kurzinfo

Ort: Rodomstorstr. 30, 24306 Plön, Kreis Plön
Leistung: Vorentwurf bis Objektbetreuung (LPH 2-9)
Bauvolumen: 600 m² Netto-Raumfläche
Leistungszeitraum: 04/2012 – 12/2013
Auftraggeber: Brücke SH gGmbH


Die Lage in einem gewachsenen Wohngebiet in unmittelbarer Nähe zum Stadtzentrum unterstützt hervorragend das Therapieziel: Die Wiedereingliederung psychisch erkrankter Menschen in den Alltag und das Berufsleben. Alt- und Neubau bilden durch Verwendung von ähnlichen Materialien und Farben ein Ensemble, das sich selbstverständlich und selbstbewusst in die Nachbarschaft einfügt. Die Therapieräume im Neubau sind organisch gestaltet, Formen und Farben sind zurückhaltend und harmonisch gewählt. Der Altbau wurde nach historischem Vorbild saniert und beinhaltet den Empfang und Mitarbeiterbüros - alte Dielenböden, offene Dachräume, frei gelegte Deckenbalken und Silikatwandfarben erzeugen eine angenehme Atmosphäre.


Fotos: Solvin Zankl

Umbau und ökologische Sanierung
Gehöft Lüchtoft für gemeinschaftliches Wohnen und Arbeiten

Kurzinfo

Ort: Lüchtoft/Niesgrau, Kreis Schleswig-Flensburg
Leistung: Grundlagenermittlung bis Objektüberwachung (LP1-8)
Bauvolumen: 360 m² Netto-Raumfläche
Leistungszeitraum: 10/2007-08/2010
Auftraggeber: Private Eigentümergemeinschaft


Mit der Sanierung dieses Gehöftes von 1890 umgeben von einem verwunschenen Park konnte orts- und landschaftsbild prägende Bausubstanz in der Kulturlandschaft Geltinger Bucht erhalten werden. Es wurde mit modernen Mitteln auf seinen historischen Charakter zurückgeführt: Sichtbare Stahlträger ersetzen die statisch nicht ausreichenden Holzdeckenbalken. Holzweichfaserplatten als Innendämmung und Wandheizungen in Lehmputz schaffen angenehmes Raumklima. Schöne Terrazzoböden, alte Türen und Natursteinschwellen wurden gerettet. Ver- und Entsorgung weitgehend autark durch Erdwärme, Photovoltaik, Rottekläranlage. Energieverbrauch wie Neubaustandard.


Fotos: wiederArchitekten

Neubau/Erweiterung und Umbau
Kindergarten Stein

Kurzinfo

Ort: Am Sportplatz 6, 24235 Stein, Kreis Plön
Leistung: Grundlagenermittlung bis Objektbetreuung (LPH 1-9)
Bauvolumen: 220 m² Nutzfläche Neubau, 106 m² Umbau, 150 m² Bestand
Leistungszeitraum: 02/2016 – 09/2017
Auftraggeber: Gemeinde Stein


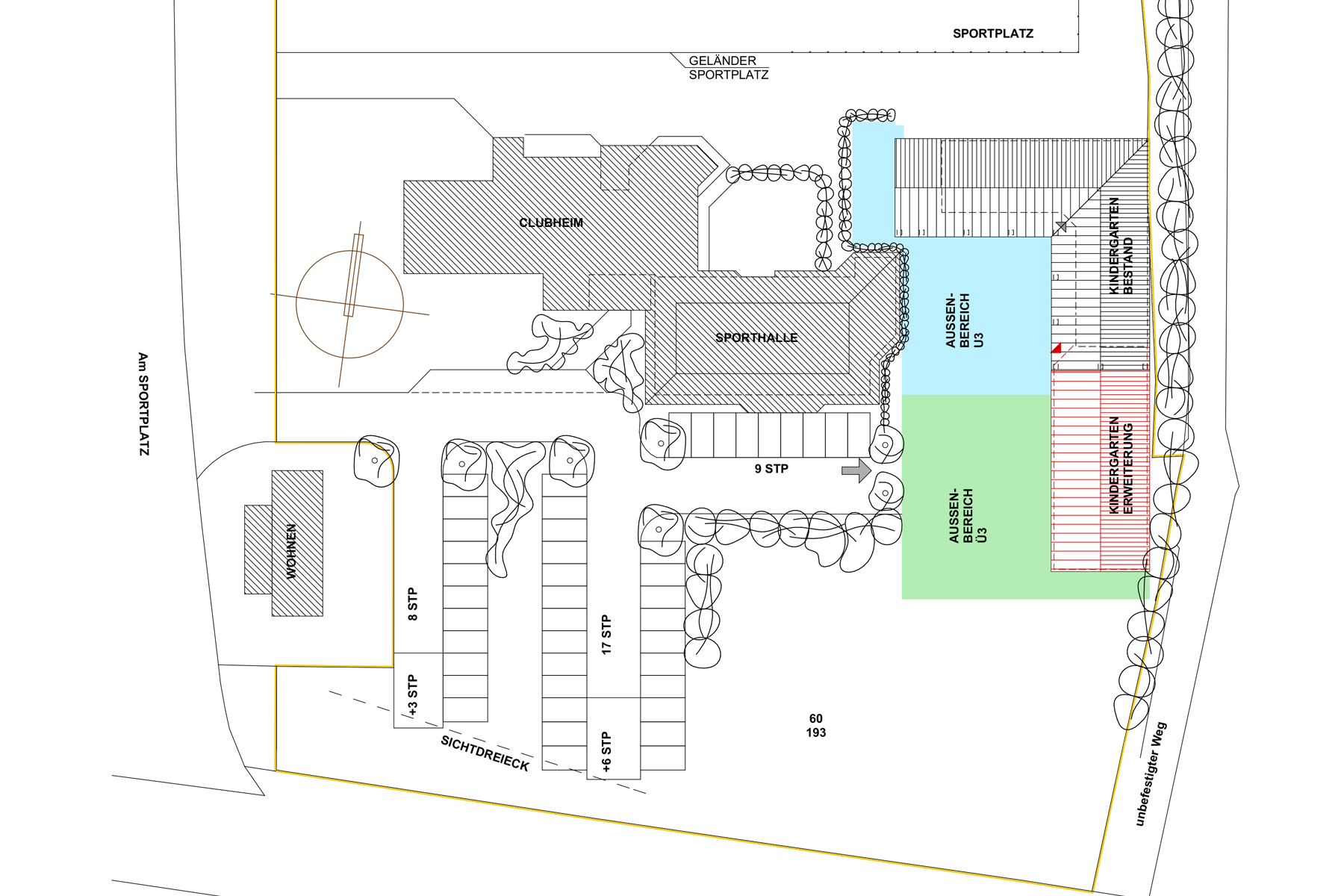
Der südliche Riegel des bestehenden Baukörpers wird verlängert und schafft Raum für zwei neue Gruppenräume mit Nebenräumen.
Das Konzept der schwellenlosen Ausrichtung zum Freigelände bleibt erhalten. Ein ehemaliger Gruppenraum wird zur Mensa und der bisherige Essraum wird zur Küche umgebaut, die dem wachsenden Bedarf entspricht.

Gebäudeproportionen und Dachform werden bewusst vom Bestand übernommen. Der Spielplatz wird passend zum Riegel ergänzt und bleibt insgesamt als vom Gebäude gefasster Hof erhalten. Damit wird die Verdoppelung der Nutzfläche des Kindergartens geschickt in den Bestand eingefügt.


Fotos: wiederArchitekten

Umbau
Psychiatrische Institutsambulanz (PIA) Plön

Kurzinfo

Ort: Gartenstr. 1, 24306 Plön, Kreis Plön
Leistung: Kostenschätzung, Vorentwurf bis Objektbetreuung (LPH2-9)
Bauvolumen: 285m² Netto-Raumfläch
Leistungszeitraum: 02/2015 bis 12/2016
Auftraggeber: Brücke SH gGmbH


Die psychiatrische Institutsambulanz (PIA) der Brücke SH ergänzt das Angebot am Standort der Tagesklinik Plön. An den Neubau der Tagesklinik grenzt ein Mehr- familienhaus, dessen Erdgeschoss bisher vom Katasteramt Plön genutzt wurde. Diese Flächen wurden für Untersuchungsräume, Büro- und Besprechungsräume der PIA umgebaut. In allen Räumen waren neue Schallschutztüren erforderlich. Aufgearbeitetes Eichenparkett, neue tiefe Holzfensterbänke und eine abwechslungs- reiche Farbgestaltung der Wände verwandeln die schlichte Büroetage in eine angenehme, die Patienten einladende Einrichtung. Der Eingangsbereich wurde barrierefrei neu gestaltet und ist über einen Weg mit dem Innenhof der Tagesklinik verbunden.


Fotos: wiederArchitekten

Umbau
Dachgeschoss Einfamilienhaus

Kurzinfo

Ort: Molfsee, Kreis Rendsburg Eckernförde
Leistung: Grundlagenermittlung bis Objektüberwachung (LP 1-8)
Bauvolumen: 110 m² Netto-Raumfläch
Leistungszeitraum: 01/2014-10/2014
Auftraggeber: Private Eigentümer


Das Dachgeschoss eines Walmdachbungalows einer sechsköpfigen Familie wird abgetragen und in einem Tag mit fertig zugeschnittenen massiven Brettsperrholzelementen wiederaufgebaut – mit hohem Drempel für mehr Wohnfläche. Das Dach mit einfacher Metalldeckung bietet Platz für eine große Photovoltaikanlage für den Antrieb der vorhandenen Erdwärmeheizung. Zur Straßenseite ruhig und bescheiden wirkende Fensterbänder öffnen sich zur Seeseite großzügig mit viel Ausblick. Die offene naturvergrauende Lärchenholzschalung nimmt das Anthrazit der alten Schindeldeckung auf und spielt mit schrägen Überdeckungen mit dem Motiv „Flügel und Möwen“ passend zum Molfsee


Fotos: Kaja Grope

Umbau und energetische Sanierung
Kinderstube Bönebüttel und Wohnungen

Kurzinfo

Ort: Bönebüttel, Kreis Plön
Leistung: Entwurf bis Objektüberwachung (LPH 3-8)
Bauvolumen: 665 m² Netto-Raumfläch
Leistungszeitraum: 10/2007-10/2009
Auftraggeber: Private Eigentümer, Nutzer Waldorfkindergarten Neumünster


Die Bönebütteler Kinnerstuuv wurde als Außenstelle des Waldorf - Kindergartens Neumünster in einem bestehenden Bauernhaus eingerichtet. Gemeinsam mit drei Wohnungen wird die alte Diele als Eingangsbereich genutzt. Der ehemalige Kuhstall mit historischen Kappendecken im Erdgeschoss wurde saniert und von außen gedämmt, hier entstand eine Wohnung. Der alte zweigeschossige Heuboden über dem Erdgeschoss wurde abgebrochen und in gleicher Größe und Optik ersetzt, für eine Maisonettewohnung. Aufgrund der rationellen Holzbauweise, mithilfe von Eigenleistung und mit Liebe zum Detail durch die Eigentümer konnte so alte Bausubstanz aus dem Jahr 1900 kostengünstig saniert und ergänzt werden. Beheizt wird mit einer zentralen Stückholzheizung, der Neubau ist hochgedämmt (KfW-Förderung).


Fotos: wiederArchitekten

Dachsanierung
Mehrfamilienhaus Adolfstraße

Kurzinfo

Ort: Adolfstraße, Kiel
Leistung: Ausführungsplanung bis Objektüberwachung (LP 5-8)
Bauvolumen: 370 m² Dachfläche
Leistungszeitraum: 02/2015 bis 11/2015
Auftraggeber: WEG vertreten durch Hausverwaltung
John Spiering GmbH & Co.KG, Kie


Das unter Denkmalschutz stehende fünfgeschossige Wohnhaus von 1900 mit Eigentumswohnungen, an der Ecke Adolfstr./Lornsenstr., in der Innenstadt von Kiel, wird denkmalgerecht energetisch saniert um Feuchteschäden zu beseitigen. Die gesamte Dachhaut wurde erneuert, Mauerwerksgesimse und Blechgesimse erneuert und Zwerggiebel aus Holz restauriert.


Fotos: wiederArchitekten

Umbau und Sanierung
Tranatogen-Mühle in Elmshorn

Kurzinfo

Ort: Mühlenstrasse 7+9, 25335 Elmshorn, Kreis Pinneberg
Leistung: Genehmigungsplanung bis Objektbetreuung (LP 4-9)
Bauvolumen: m² Netto-Raumfläche
Leistungszeitraum: 11/2017 - 06/2018
Auftraggeber: Brücke Schleswig-Holstein gGmbH


Die denkmalgeschützte Tranatogenmühle von 1907 wird heute von der Brücke SH für Wohnungen und Therapieräume für psychisch Erkrankte sowie Mitarbeiterbüros und eine öffentliche Kantine genutzt. Die Bausubstanz außen wird instandgesetzt, innen werden Brandschutztüren erneuert und Räume umgebaut. Einige Dächer werden neu gebaut bzw. denkmalgerecht saniert. Die Ostfassade wird mit ursprünglich vorhandenen Kranbalken und Fensterläden denkmalgerecht aufgewertet


Fotos: wiederArchitekten

Neubau und Umbau
des Regionalen Bildungszentrums 1 für Soziales, Ernährung und Bau (RBZ1)

Kurzinfo

Ort: Königsweg, Kiel
Leistung: LPH 1-8 einschl. Projektleitung
(Volker Wieder als angestellter Architekt der Immobilienwirtschaft Stadt Kiel)
Bauvolumen: 3.600 m² Netto-Raumfläche
Leistungszeitraum: 10/2010 bis 08/2012
Auftraggeber: Stadt Kiel


Das viergeschossige, unterkellerte Haupthaus der Schule aus dem Jahr 1952 erhielt an der Giebelseite einen gebäudehohen Anbau für einen repräsentativen Eingangsbereich im EG, Aufenthaltsbereiche am Ende der Flure in den darüberliegenden Geschossen und eine 5 -geschossige Aufzugsanlage. Die Aussenhüllle wurde allseitig komplett erneuert: Im Osten und Westen mit einer Glasfassade aus gelben durchsichtigen und undurchsichtigen Glasflächen mit außenliegendem Sonnenschutz; an den Giebelschotten mit Sichtbeton- Tafeln. Das Flachdach wurde gedämmt und abgedichtet. Erzeugt wurde ein energetisch ertüchtigtes und modernes Erscheinungsbild. Innen wurden alle Räume und die gesamte Haustechnik grundsaniert. Altlasten wurden entsorgt, der Brandschutz ertüchtigt.


Fotos: Solvin Zankl